This is an office building project which was the result of a competition.
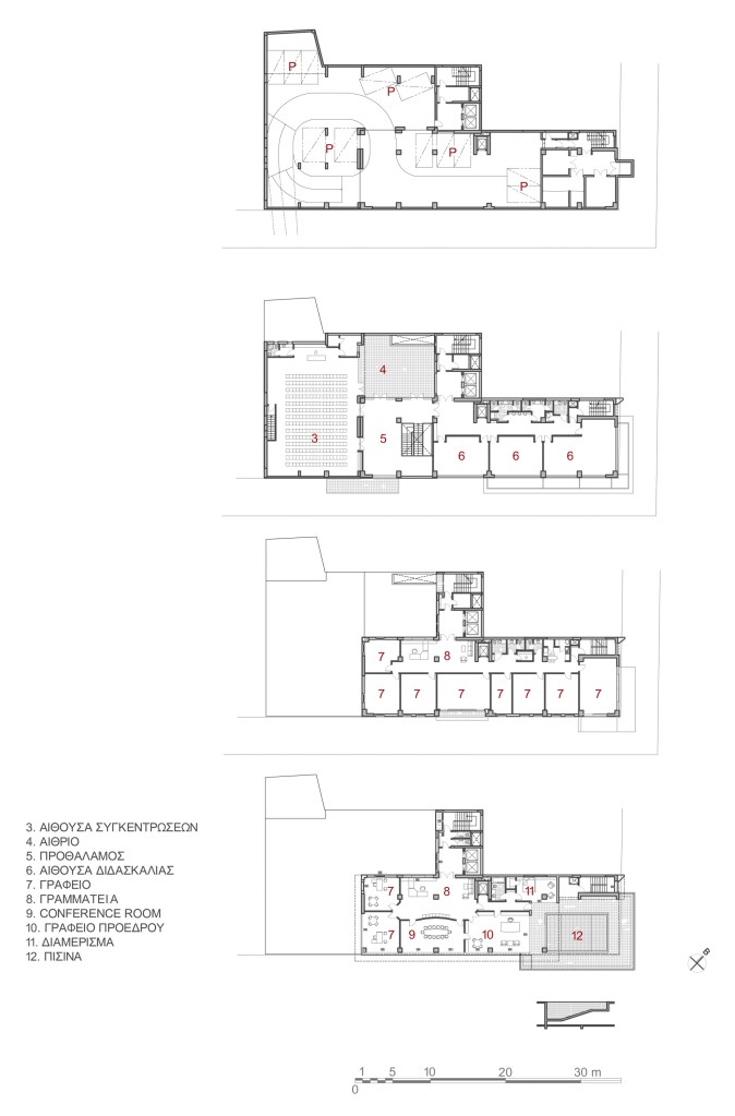
Ipirotiki Software & Publications is a company that controls the production of software and trade media which address accountants, tax data and trading, as well as sees itself as a major player in the area of specialized education in related areas. It controls a network of specialized ‘node-spaces’ that function as internet cafes and information dissemination spaces and social meeting points for professionals in the above areas. The new headquarters (Lenorman avenue) in Athens includes shops at ground level, educational facilities and a multi-use 256 people capacity conference center on the first floor, five typical office space floors, president’s office with conference rooms, secretary and a swimming pool on the 6th floor. The building faces the Greek Parliament index building.
In collaboration with Marina Petroula and Dimitris Dais.




